Създаваме дом!
Начало
Новини
Контакти
 

ЮЖЕН ДВУСТАЕН ул. МАЙСКИ ДЕН № 3, ЛЮЛИН 10 - ОРИОН

ЮЖЕН ДВУСТАЕН ул. МАЙСКИ ДЕН № 3

Проект

ЮЖЕН ДВУСТАЕН ул. МАЙСКИ ДЕН № 3

Местоположение

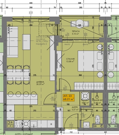
Вид : ЮЖЕН ДВУСТАЕН ул. МАЙСКИ ДЕН № 3

Етаж : 6

Квадратура : 81 кв. м.

Цена : 150 000 €


Южен двустаен с чудесно разпределение и перфектна геометрия на помещенията.

Входно антре, помещение за пералня, баня с тоалетна, дневна с кухненски бокс, спалня и балкон.

Започна строителството на новия ни проект в гр. София:

ж.к. Люлин 10 - Орион, ул. "Майски ден" №3.

Богат избор на двустайни и тристайни апартаменти. Южно изложение.

Модерна архитектура, съвременнен начин на живот!

- Разрешение за Строеж от Ноември 2025 г.

- Открита строителна площадка - Януари 2026 г.

- Край на строителство /Акт 15/ - Септември 2027

- Акт 16 - Декември 2027

Крайни окончателни цени с ДДС и без заложени скрити индексации в договора.

Примерна схема на плащане:

40 % - при сключване на предварителен договор

40 % - Акт 14

10 % - Акт 15

10 % - Акт 16

Подробности за обекта


За контакти с нас

ОК Имот

гр. София, ул. „Искър” 75

тел. 02/442-01-04, 0888/85-77-79

ИЗПРАТЕТЕ ЗАПИТВАНЕ ЗА ЮЖЕН ДВУСТАЕН УЛ. МАЙСКИ ДЕН № 3

Новини и събития

В групата компании „ОК ИМОТ” усилия са обединили 5 независими търговски дружества.
Ние в групата компании „ОК ИМОТ” се стремим да изпипаме всеки детайл и всяка стъпка от дългия и сложен процес по създаването и реализирането на една жилищна сграда
Често задавани въпроси при закупуване на имот или как да подходим разумно при избора на нашия бъдещ дом

© 2014 OK Имот WebDesignBG

гр. София, ул. Искър № 75

+3594420104

+359 888 85 77 79

Посетете ни във Facebook